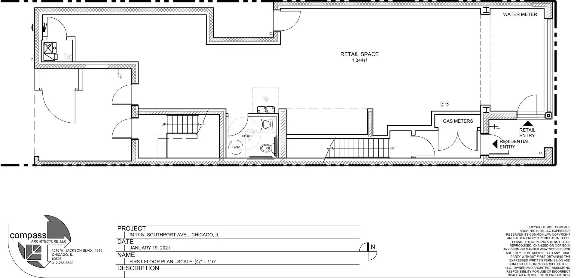
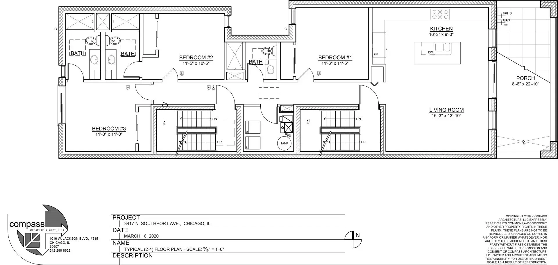
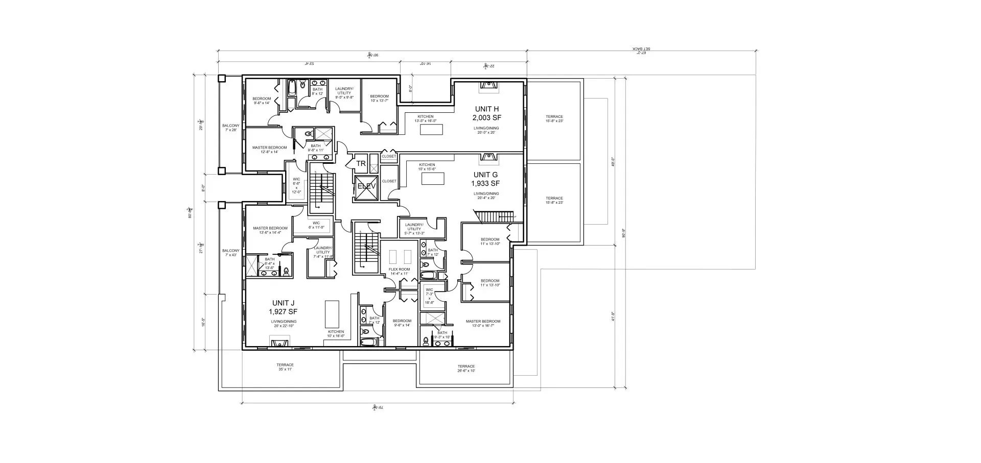
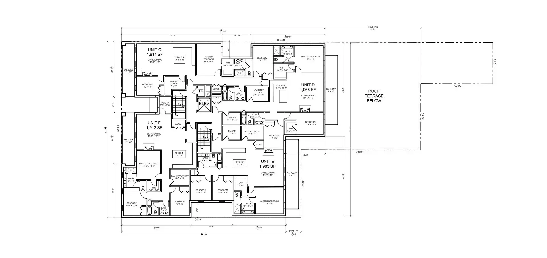
Chicago Developments Projects
Where Your Vision Meets Expert Craftsmanship
Ashland

Dayton

Schedule Your Initial Consultation
With personal service, attention to detail, and creativity, our team of architects will find the right mix of design that is unique to you. Call us to learn more about our services or to schedule your initial design consultation. 











